Квартира по адресу г. Нижний Тагил, ул. Бажова, д.4

г. Нижний Тагил, ул. Бажова, д.4
4 100 000 ₽

Объект № S-1310

Тип сделки: Продажа
Тип недвижимости: Жилая, Квартира
Район:Вагонка
Этаж:1/4
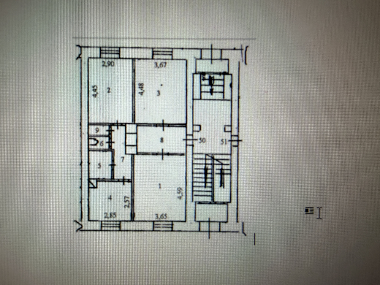
Площадь: 69 м2
Жилая площадь: 46 м2
Площадь кухни: 7 м2
Мебель: Нет
Тип дома: Сталинка
Материал дома: Кирпич
Ремонт: В отличном состоянии
Санузел: Раздельный
Описание

**Продается уютная трехкомнатная квартира в историческом центре Вагонки!**

? **Адрес:** ул. Бажова, д. 4 Общая площадь: 69,1 м. кв. Жилая площадь: 46 м. кв. Площадь кухни: 7.3 м. кв.

? **Этаж:** 1 из 4

? **Тип дома:** старого типа с высокими потолками и пластиковыми окнами.

**Описание квартиры:**

- Просторная квартира с **изолированными** двумя комнатами и одной **совмещенной** с кухней.

- Выполнены все **черновые работы**: заменены стены, установлены капитальные перегородки, проведены новые сантехнические коммуникации.

- В ванной комнате установлена новая **ванна** (1800 мм), а в туалете предусмотрен вывод для бойлера.

- Установлены счетчики холодной и горячей воды, проведена новая **электропроводка** с современным распределительным щитом.

- Залита ровная стяжка с **теплым полом** — квартира практически готова к чистовой отделке!

**Дополнительно:**

- В наличии материалы для ремонта: плитка для стен и пола, сантехника, межкомнатные двери — по договоренности можем оставить.

- Квартира очень **теплая** и уютная.

- Во дворе достаточно места для **парковки** автомобилей.

**Удобное местоположение:**

- В шаговой доступности находятся школы, детский сад, магазины, кинотеатр и остановки общественного транспорта.

- Рядом — ДК им. Окунева с прекрасным парком и площадь Славы.

Не упустите возможность создать свой идеальный дом в центре города! Разумный торг.

Приглашаем Вас на просмотр!

Фотографии объекта
Расположение на карте
4 100 000 ₽

Вас может проконсультировать

Лузянина Агент
+7 (912) 604-00-88
Показать контакты